Okna? A k čemu, prosím vás?
Umístění a velikost oken, to je pro každého architekta a pro každý projekt takřka klíčový problém. V Japonsku je přitom vždy nutné sofistikovaně řešit i půdorys stavěných budov. V přelidněné zemi vycházejícího slunce je máloco dražšího než pozemky a tak se šetří doslova s každým kouskem půdy. Právě nedávno internetové architektonické e-ziny přinesly několik ukázek, jak se japonští architekti vyrovnávají s oběma zmíněnými problémy. Jako inspirace mohou jistě posloužit u nás i jinde, atraktivních stavebních parcel je totiž všude málo.
Zdá se, že japonští architekti jsou přeborníky v navrhování domů na opravdu problematických parcelách. Dokážou využít každý čtvereční centimetr a neváhají dům prakticky obrátit naruby a okna skrýt za betonovou vnější slupku.
Prvním příkladem je Cube House, který byl postaven v Kanagawě. Obytný dům s užitnou plochou 114 metrů čtverečních je postaven v modulové síti 1,5 metru a je tvořen kompaktní hmotou o rozměrech 9×9×6 metrů s vnitřním prázdným prostorem o rozměrech 4,5×4,5×6 m. Srdcem budovy, kde prosklená střecha přivádí do interiéru denní světlo a propojuje všechny místnosti a samozřejmě i život všech svých obyvatel (takové „společné“ bydlení je v Japonsku právě vzhledem k chronickému deficitu volných stavebních pozemků tradicí), je „dutina" sloužící jako jídelna a obývací pokoj. Po obvodu domu je v přízemí umístěna vstupní hala, dětský pokoj a kuchyně, v prvním poschodí pak ložnice rodičů, šatna a koupelna. Dům byl dokončen letos v lednu podle návrhu japonského ateliéru Shinichi Ogawa & Associates.
Trochu jinou, nicméně stejně úspornou a originální koncepci má dům se dvěma zahradami. Vznikl podle návrhu japonského ateliéru Suppose Design Office a nachází se na živé obchodní ulici v Hirošimě. Návrh měl mj. za cíl uspokojit klientovu touhu po zahradě v lokalitě, kde žádná zeleň v podstatě není. Budova má železobetonovou konstrukci a ve dvou podlažích nabízí přes 66 metrů čtverečních obytné plochy. V interiéru dominuje kámen, pohledový beton a dřevo. Díky velkorysým proskleným plochám a perforovaným ocelovým podlahám v zahradách mají interiéry domu dostatek denního světla, přitom si zachovávají maximální intimitu.
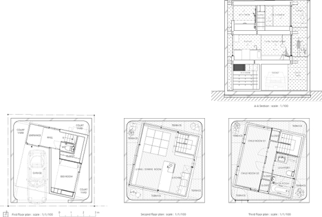
I dům Minamimachi, který by bylo možné nazvat „kostka v kostce“ a je výsledkem práce ateliéru Suppose Design Office, najdete v japonské Hirošimě. Je obklopen „bezoknovou“ betonovou slupkou, která v rušné ulici chrání soukromí jeho obyvatel. Vzájemným natočením obvodových a vnitřních zdí domu vzniklo několik trojúhelníkových teras, které do domu přivádějí dostatek denního světla. Vnější stěny jsou z železobetonu, dům samotný má ocelovou konstrukci. V přízemí budovy je umístěna garáž, vstupní hala a ložnice rodičů, v prvním patře se nachází kuchyň a obývací pokoj, ve druhém patře jsou dětské pokoje. Dům je umístěn na čtvercové parcele o velikosti 55 metrů čtverečních a nabízí majitelům 79 metrů čtverečních obytné plochy.
Fotografie: Shinichi Ogawa & Associates (Cube House), Takumi Ota
Zdroj: www.archdaily.com a www.dezeen.com




































Jagg.cz
Linkuj.cz
Google Bookmarks
Live bookmarks
Digg
Del.icio.us
MySpace
Facebook